Pis - Barcelona
Tour Virtual
Descripció
Característiques
ReferènciaC-130
PoblacióEixample
ComarcaBarcelona
UbicacióEspanya
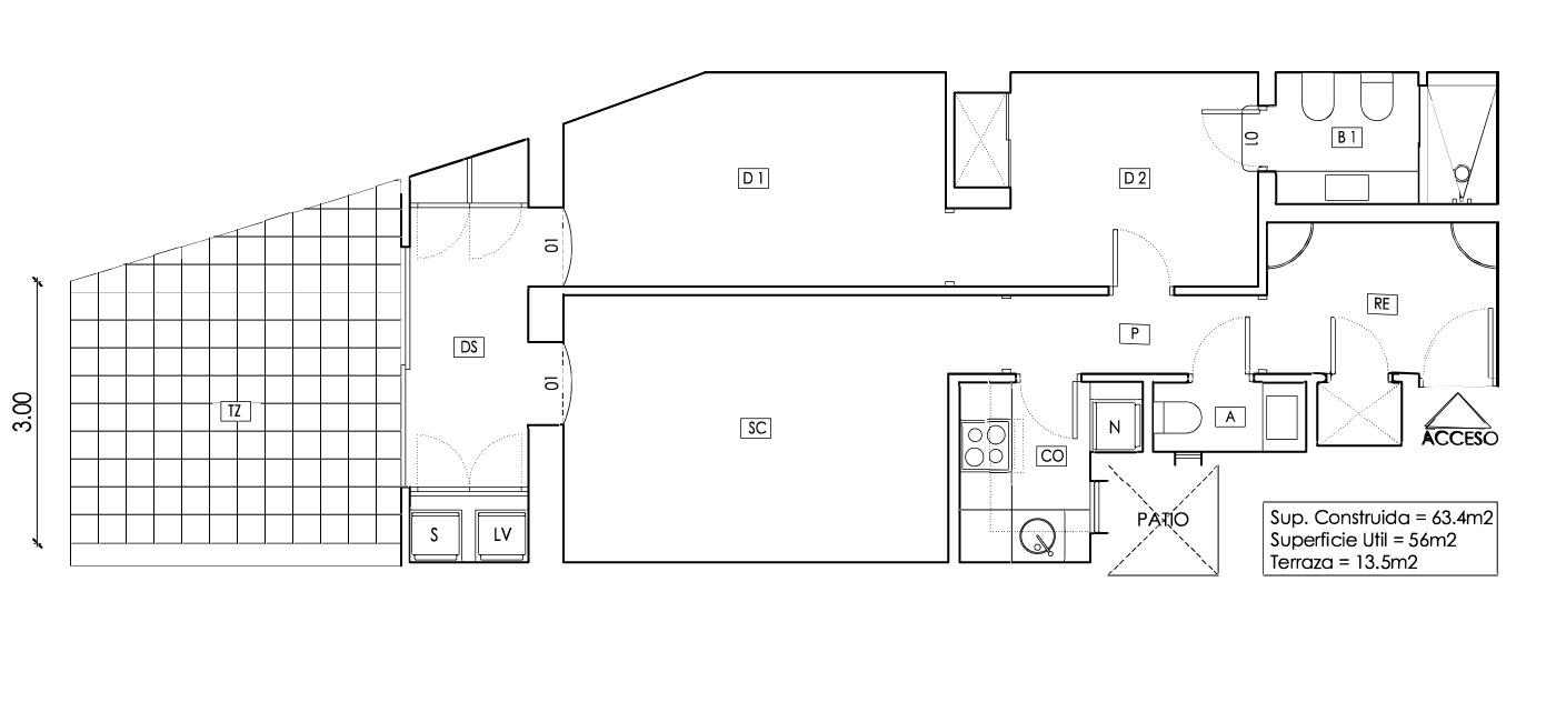
Superfície útil60 m²
Superfície parcel·la66 m²
Preu350.000€
ConservacióBon estat
Habitacions individuals0
Habitacions dobles2
Banys2
Planta0
Extres
Terrassa✓
En tràmit
| Escala de qualitat energètica | Consum (kWh/m² any): |
Emissions (kg CO₂/m² any): |
|---|---|---|
| MOLT EFICIENT | ||
| POC EFICIENT |
NOTA: La informació d’aquesta propietat pot haver canviat, per tant, no som responsables de la fiabilitat de la informació. Poseu-vos en contacte amb nosaltres per conèixer les característiques exactes.





























