Altres - Barcelona
Tour Virtual
Descripció
Característiques
ReferènciaT-392
PoblacióLa Barceloneta
ComarcaBarcelona
UbicacióEspanya
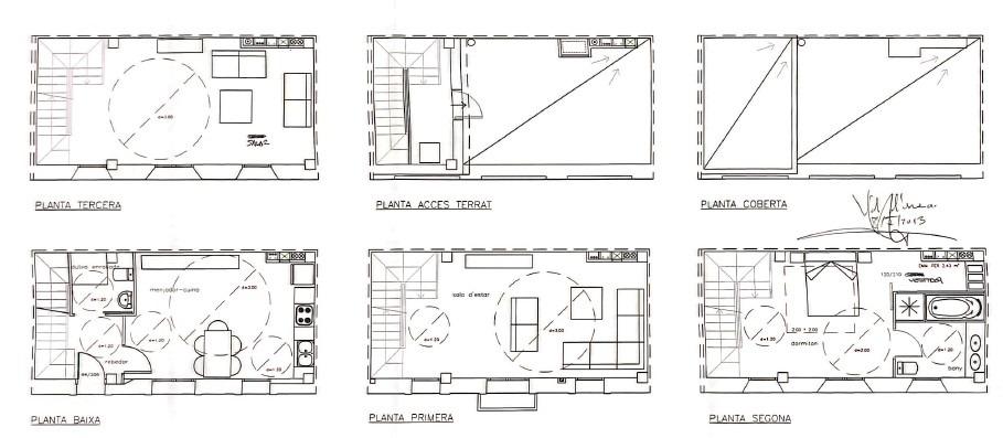
Superfície útil124 m²
Superfície parcel·la147 m²
Preu898.000€ 925.200 €
ConservacióReformat
Habitacions individuals0
Banys3
Distància al mar200 m
Planta4
IBI1.366,16 €
CalefaccióElèctrica
Instal·lació elèctrica220V
Aigua calentaTermo elèctric
Tipus d’exteriorExterior
Extres
Balcó✓
Calefacció✓
Electrodomèstics✓
Lluminós✓
Lluminositat✓
Moblat✓
| Escala de qualitat energètica | Consum (kWh/m² any): 0 |
Emissions (kg CO₂/m² any): 0 |
|---|---|---|
| MOLT EFICIENT | ||
|
0
|
0
|
|
| POC EFICIENT |
NOTA: La informació d’aquesta propietat pot haver canviat, per tant, no som responsables de la fiabilitat de la informació. Poseu-vos en contacte amb nosaltres per conèixer les característiques exactes.























































