Casa - Breda
Tour Virtual
Descripción
Características
ReferenciaT-325B
PoblaciónBreda
ComarcaBreda
UbicaciónEspaña
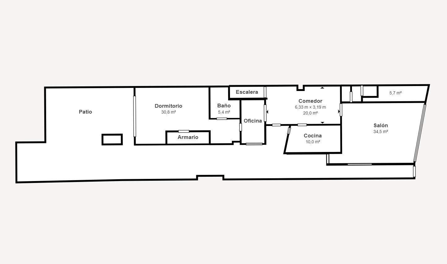
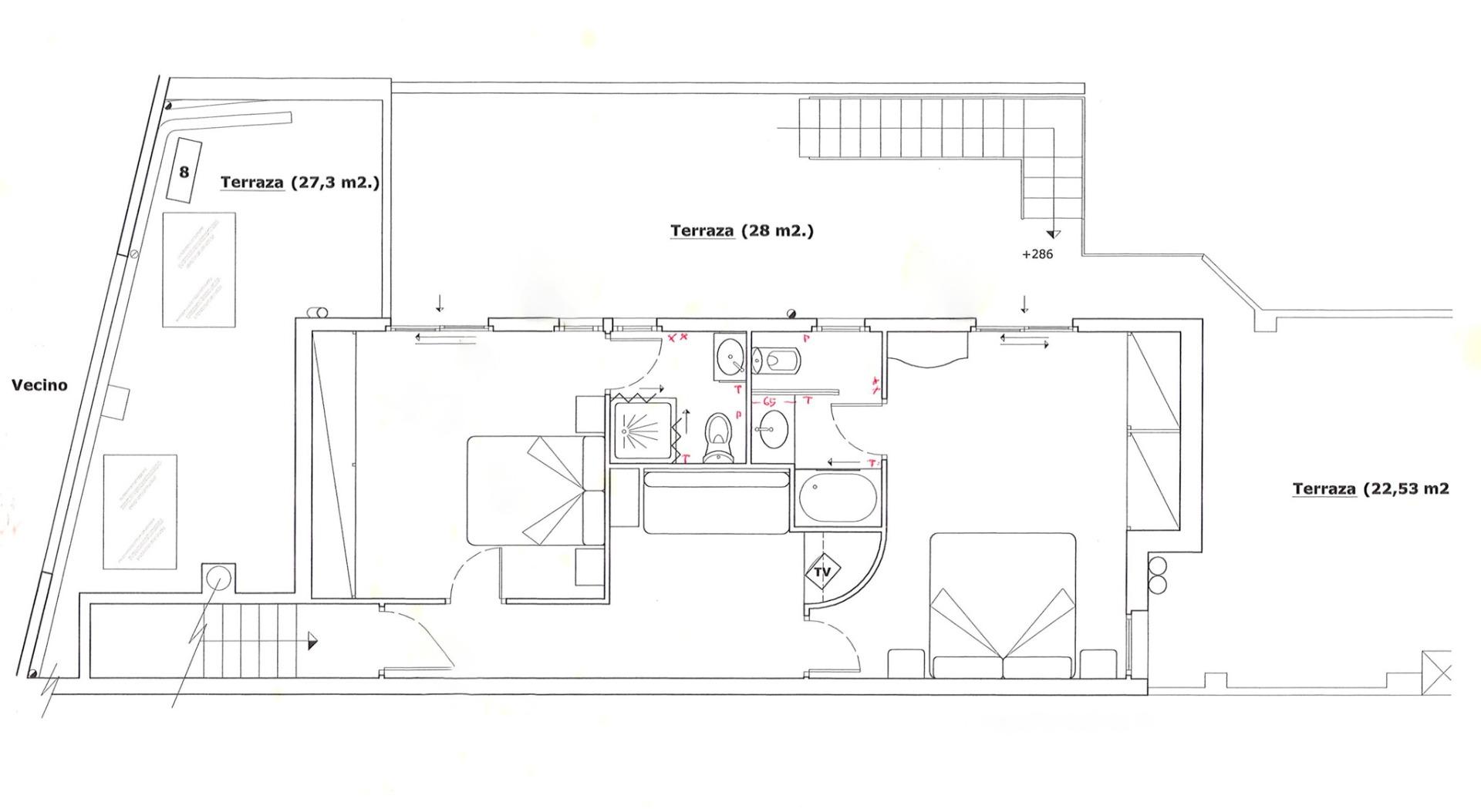
Superficie útil237 m²
Superficie parcela292 m²
Precio415.000€
ConservaciónBuen estado
Habitaciones individuales0
Habitaciones dobles3
Baños4
Planta0
Tipo de sueloParqué
CalefacciónRadiadores
Tipo de exteriorExterior
Extras
Aire central✓
Calefacción✓
Chimenea✓
Depósito de agua✓
Electrodomésticos✓
Luminoso✓
Patio interior✓
Terraza✓
Cocina independiente✓
Montaña✓
| Escala de calidad energética | Consumo (kWh/m² año): 0 |
Emisiones (kg CO₂/m² año): 1234.99 |
|---|---|---|
| MUY EFICIENTE | ||
|
0
|
1234.99
|
|
| POCO EFICIENTE |
NOTA: La información de esta propiedad puede haber cambiado, por lo tanto, no somos responsables de la fiabilidad de la información. Poneros en contacto con nosotros para conocer las características exactas.





















































































